Aktuell
Stadtspital Triemli Zürich
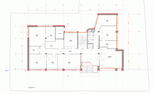
Geburtsabteilung und Sectio | Bettenstation Frauenlinik | Eingangshalle, Konferenzzentrum und Cafeteria
Die Umbau- und Sanierungsarbeiten im Zürcher Seefeld sind abgeschlossen.
Unser Umzug rückt näher: noch 30 Tage, bis wir die gemeinsamen Räumlichkeiten mit ATP beziehen.
Petra Hemmi im Interview mit "arcade Living + Health + Care" über die Spezialisierung und Gestaltungsansätze im Health-Sektor und die gemeinsame Zukunft mit ATP architekten ingenieure
Der Countdown läuft: Noch zwei Monate, bis wir zu neuen Ufern aufbrechen und gemeinsam mit ATP architekten ingenieure unsere neu ausgebauten Büros in Zürich beziehen.
Frauenklinik Stadtspital Triemli, Zürich
In der Geburtsabteilung des Stadtspitals Triemli sind nach dem Sectiobereich auch die neuen Untersuchungs- und Entbindungszimmer für eine baldige Inbetriebnahme bereit.
Seechirurgie Thalwil
Auf rund 570 m2 entsteht in Thalwil im Auftrag des Hernienzentrums Schweiz eine chirurgische Praxis mit Doppel-Operationssaal.
Impressionen des Baufortschritts im Zürcher Seefeld
Cafeteria Stadtspital Triemli, Zürich
Eines der bereits abgeschlossenen Teilprojekte am Stadtspital Triemli: Die umgestaltete Cafeteria ist seit Anfang Jahr in Betrieb.
Die neue Gebärabteilung am Stadtspital Triemli nimmt weiter Gestalt an: Der Sectiobereich GEBS ist bald fertig.
Frauenklinik Stadtspital Triemli, Zürich
Der nächste Meilenstein am Stadtspital Triemli: Das Projekt «Integration Frauenklinik» im Bettenhaus ist fertiggestellt.
Ein weiteres Etappenziel am Stadtspital Triemli: Wir freuen uns, dass die neue Eingangshalle und das Konferenzzentrum in Betrieb genommen werden konnten.
hemmi fayet wird Teil des ATP-Netzwerks
Auf der Suche nach einer zukunftsfähigen Nachfolgelösung haben wir in ATP architekten ingenieure den richtigen Partner gefunden.
In direkter Nachbarschaft zu unserem Ersatzneubau-Projekt in Zürich sanieren wir ein bestehendes Mehrfamilienhaus nach Minergie-Standard.
Ersatzneubau Mehrfamilienhaus Zürich
Zwischen Kunsthaus und Kreuzplatz, mitten in Zürich, entsteht ein Ersatzneubau nach Minergie-Standard mit elf Wohnungen.
Das in den 1960er-Jahren erbaute Mehrfamilienhaus in Rüschlikon wird einer Gesamtsanierung unterzogen. Es entstehen acht Wohnungen – inklusive zwei Attikawohnungen – mit gehobenem Ausbaustandard.
Frauenklinik Stadtspital Triemli, Zürich
Es geht voran mit der Integration der Frauenklinik am Stadtspital Triemli.
Baustellenbesuch
Im Rahmen eines Ferienworkshops des ZAZ BELLERIVE Zentrum Architektur Zürich besuchte eine Gruppe von Schulkindern unsere Baustelle im Zürcher Seefeld.
Eingangshalle Stadtspital Triemli, Zürich
Ein weiterer Schritt Richtung Projekt-Abschluss am Triemli: Die neue Eingangshalle ist weitgehend fertiggestellt.
Das Projekt "Umbau Eingangshalle und Bistro Gebäude NORD1" ist abgeschlossen.
Die Strangsanierung des Mehrfamilienhauses ist bald abgeschlossen.
9.11.22: Petra Hemmi und Serge Fayet im Gespräch mit Anita Simeon Lutz über die Bedeutung der innenarchitektonischen Gestaltung von Gesundheitsbauten.
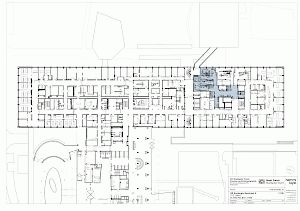
Eingangshalle Universitätsspital Zürich
Die zweite Etappe des Umbaus "Eingangshalle und Bistro Gebäude Nord" am USZ ist abgeschlossen.
Passerelle Stadtspital Triemli, Zürich
Der Bau der Passerelle am Stadtspital Triemli ist abgeschlossen.
Der knapp ein Jahr dauernde Umbau der Nuklearmedizin-Abteilung im Stadtspital Triemli wurde mit der Installation des PET-CT Scanners abgeschlossen.
Fassadenbegrünung Stadtspital Triemli
Im Zuge der Instandsetzung des Turms des Stadtspitals Triemli wurde ein Pilotprojekt für die Begrünung der Südfassade realisiert.
Vor Kurzem haben die Bauarbeiten an dem Mehrfamilienhaus aus den 1940er-Jahren begonnen.
Die im Juli 2021 begonnene Sanierung des Mehrfamilienhauses nähert sich ihrem Abschluss.
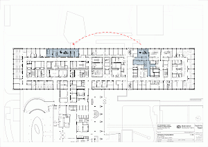
Bistro Universitätsspital Zürich
Die erste Etappe des Umbaus "Eingangshalle und Bistro Gebäude Nord" am USZ ist abgeschlossen.
Mit der Inbetriebnahme des neuen Empfangs im Schweizer Paraplegiker-Zentrum findet ein Gross-Projekt seinen erfolgreichen Abschluss.
Kostenfokus als mäeutisches Moment
Serge Fayet über einen Paradigmenwechsel im Spitalbau. Management Forum Starnberg, Future Hospital 2021, München.
Passerelle Stadtspital Triemli, Zürich
Auf dem Areal des Stadtspitals Triemli entsteht zwischen Bettenhaus und Turm eine Passerelle, die auf neun Geschossen eine direkte Verbindung zwischen den beiden Gebäuden schafft.
Im Juli 2021 beginnen die Sanierungs- und Erweiterungsarbeiten.
Sanierung Attikawohnung Steinhausen
Innerhalb von drei Monaten wurde eine Attikawohnung saniert.
An der Uraniastrasse 14 entstehen bis 2024 an repräsentativer, zentraler Lage Praxis- und Büroflächen. Interessierte können schon heute ihre Wunschflächen reservieren.
Clinicum 1-21
Erfolgsfaktor Projektorganisation – agile Planung und flexibles Bauen für nachhaltige Spital-Infrastrukturen: das Beispiel SPZ (Teil 6)
Interessierte haben am SPZ dank eines innovativen Fensters die Möglichkeit, das Innere des Operationssaals zu besichtigen.
Physiotherapie USZ
Seit letztem Jahr ist der Umbau der Physiotherapie am USZ in vollem Gange.
"Der Therapiegarten in Nottwil wird zu einem Ort, wo der Mensch die Natur pflegt - und die Natur den Menschen."
Clinicum 6-20
Agile Planung und flexibles Bauen für nachhaltige Spital-Infrastrukturen: das Beispiel SPZ (Teil 5)
"Fünf Jahre Planung, fünf Jahre Bauzeit - im Herbst wurde das neue Schweizer Paraplegiker-Zentrum in Betrieb genommen."
PwC Jahresbericht "Schweizer Spitäler: So gesund waren die Finanzen 2019" Interview mit Serge Fayet
"Gesundheitsimmobilien sollten Ausdruck einer agilen Planung und einer flexiblen Infrastruktur sein."
Clinicum 5-20
Agile Planung und flexibles Bauen für nachhaltige Spital-Infrastrukturen: das Beispiel SPZ (Teil 4)
Neubauprojekt Ackersteinstrasse
Das Mehrfamilienhaus an der Ackersteinstrasse ist bald bezugsbereit - Eindrücke der letzten Bauphase.
Clinicum 4-20
Agile Planung und flexibles Bauen für nachhaltige Spital-Infrastrukturen: das Beispiel SPZ (Teil 3)
Clinicum 3-20
Agile Planung und flexibles Bauen für nachhaltige Spital-Infrastrukturen: das Beispiel SPZ (Teil 2)
Clinicum 2-20
Agile Planung und flexibles Bauen für nachhaltige Spital-Infrastrukturen: das Beispiel SPZ (Teil 1)
Die Brandschutzsanierung unter Betrieb der insgesamt fünf Gebäude des Stadtspitals Triemli in Zürich ist abgeschlossen.
Umgebung SPZ
Neues von der Umgebungsgestaltung am Schweizer Paraplegiker-Zentrum, Nottwil.
Erweiterungsbau Paraplegiker-Zentrum, Nottwil
Referat zur strategischen Planung im Spitalbau.
Baustellenimpressionen Ackersteinstrasse
Das Neubauprojekt an der Ackersteinstrasse nimmt Gestalt an - Baustellenfotos des Rohbaus.
Mona Vetsch im Paraplegiker-Zentrum Nottwil
Mit der Folge 2 von "Mona mittendrin 2019" ist Mona Vetsch zu Besuch im Schweizer Paraplegiker-Zentrum in Nottwil.
Das Universitätsspital Zürich hat unseren Neubau SUED2 in Betrieb genommen. Diverse Medien haben darüber berichtet.
Vom 5. bis 8. September 2019 öffnet das Besucherzentrum ParaForum auf dem Campus Nottwil seine Türen.
Ersatzneubau Mehrfamilienhaus, Kriens
Das Gerüst ist demontiert und die Hinterfüllarbeiten haben begonnen. Die Parkett- und Plattenarbeiten schreiten voran.
Start Umbau Geranienstrasse
Im April 2019 wurde mit dem Bau begonnen. Die Arbeiten am Mehrfamilienhaus mit 10 Wohnungen werden ungefähr ein Jahr in Anspruch nehmen.
Innensanierung von 68 Wohnungen
Im September 2018 wurde in Hünenberg Eichrüti I mit der Strangsanierung begonnen. In den 68 Wohnungen werden die Nasszellen (113) und Küchen saniert. Die Sanierung erfolgt im bewohnten Zustand, in 15 Etappen.
Umnutzung des alten Bettenhauses zu Büro und Ambulatorium. Erneuerung der haustechnischen Anlagen und Oberflächen. Integration der Frauenklinik ins Kernspital.
Die bestehende Notfallvorfahrt wurde neu eingekleidet.
Energetische Fassadensanierung Bürogebäude
Die Eternitfassade und die neuen Fenster sind montiert, es folgen die Arbeiten im Sockelbereich.
Gönner-Magazin Paraplegie Dezember 2018
Das Schweizer Paraplegiker-Zentrum (SPZ) hat im Oktober drei topmoderne neue Operationssäle und eine neue Intensivpflegestation in Betrieb genommen, die höchsten Ansprüchen gerecht werden.
Stadtspital Triemli Zürich, Arealstudie 2050
Die Stadt Zürich hat eine Kooperationsplanung "Arealstudie Stadtspital Triemli" mit von Ballmoos Krucker Architekten AG (Städtebau), Studio Vulkan (Landschaftsarchitektur) und hemmi fayet architekten ag (Spitalarchitektur) beauftragt.
Studie, Kliniken Valens
Beratung der Kliniken Valens bezüglich eines möglichen Neubaus auf dem Areal des STZ in Zürich.
Fassadensanierung Bürogebäude, Zürich
Der Bauentscheid liegt vor, demnächst beginnen die Bauarbeiten.
Ersatzneubau zweier Mehrfamilienhäuser
Mit dem Neubau wurde im Sommer 2017 begonnen. Der Blick aus dem Hubschrauber zeigt den aktuellen Baufortschritt.
Ersatz von zwei Linearbeschleunigern zur Behandlung von Tumorpatienten am Spital Triemli. Etappenweise werden unter Betrieb die medizinischen Geräte ausgetauscht und die Gebäude-Technik erneuert.
Im Behandlungstrakt des Stadtspitals Triemli wird die Kardiologie um ein weiteres Herzkatheterlabor für die Behandlung von Herzrhythmusstörungen ergänzt. Die Räume werden an die neuen Nutzungsbedürfnisse angepasst.
Im Behandlungstrakt des Stadtspitals Triemli wird das Angiographielabor an einen neuen Standort verlegt.
Brush-Up des in die Jahre gekommenen Speisesaals im Tertianum Segeten. Erstellen eines neuen Farb-, Material- und Beleuchtungskonzepts, Ersatz der Beleuchtung, Bestuhlung, Vorhänge und teilweise der Schreinereinbauten.
Das Schweizer Paraplegiker-Zentrum (SPZ) stösst heute an seine Kapazitätsgrenzen. Mit einer Erneuerung und Erweiterung soll den steigenden Bevölkerungszahlen, Menschen, die immer älter und dadurch zunehmend krankheitsbedingt querschnittgelähmt werden, auch weiterhin gerecht werden können.
Die neue Tiefgarage D wurde im Frühjahr 2017 fertiggestellt.
Die neue Verbindung SHS-GZI wurde im Frühjahr 2017 fertiggestellt.
Baudokumentation - Baustellenkamera 21.01.2015 - 02.02.2017
Universitätsspital Zürich, Neubau einer unterirdischen Technikzentrale, Zürich
Neubau SUED 2, Universitätsspital Zürich
Neubau eines Spital-Provisoriums (Modulbau SUED 2) als Rochadefläche während der Gesamterneuerung des Universitätsspitals Zürich (USZ)
Neubauprojekt für ein Pflegeheim mit ca. 50 Pflegeplätzen, Gesamtgeschossfläche ca. 3'500m2, Gebäudevolumen ca. 10'500m3
In der Pflegeabteilung des Tertianum Segeten wurde in diesem Brush-up-Projekt ein einheitliches Erscheinungsbild realisiert.
Im Oktober 2015 war der Spatenstich für den Erweiterungsbau des SPZ Nottwil. So zeigte sich die Baustelle im Sommer 2016.
Umbau Wohn- und Geschäftshaus, Zürich
Mit dem Umbau der Liegenschaft wurde im April 2016 begonnen. Umbau und Sanierung eines Wohn- und Geschäftshauses mit 18 Wohnungen und Dienstleistungsfläche im Erdgeschoss
Modulbau SUED 2, Universitätsspital Zürich
Neubau eines Spital-Provisoriums (Modulbau SUED 2) als Rochadefläche während der Gesamterneuerung des Universitätsspitals Zürich (USZ) Baukosten 90 Mio
Der Neubau schreitet immer weiter voran. Die Bilder zeigen die Baustelle im Dezember 2015.
Die Baudirektion Kanton Zürich, vertreten durch das Hochbauamt, veranstaltete im Auftrag der Gesundheitsdirektion eine Submission für die Vergabe der Planerleistungen für das Bauvorhaben Helikopterlandeplatz auf Bauten des USZ. Hemmi Fayet Architekten AG erreichten mit 4 weiteren Büros die 2. Phase.
Umbau Neonatologie, Winterthur
Nach 2.5 Monaten Bauzeit sind der Umbau und die Erweiterung der Neonatologie im Kantonsspital Winterthur fertiggestellt.
Am 1. Oktober haben die Verantwortlichen der Schweizer Paraplegiker-Stiftung und des Zentrums den Startschuss für das rund vier Jahre dauernde Bauprojekt gegeben. Gleichzeitig mit dem Spatenstich zur Erweiterung und Erneuerung der Klinik wurde der 80. Geburtstag von Gründer Guido A. Zäch gefeiert.
Da die vorhandene Energieversorgung des USZ an ihre Kapazitätsgrenzen stösst, wird eine neue Technikzentrale erstellt. Die unterirdische Technikzentrale wird in den Bestand eingegliedert und sorgt so für eine zukünftige Versorgung der umliegenden Trakte. Der Bau der Technikzentrale erfolgt unterirdisch, damit nach ihrer Fertigstellung der denkmalgeschützte Park wiederhergestellt werden kann.
Umbau Neonatologie, Winterthur
Die bestehende Station der Neonatologie soll angepasst und erweitert werden. Hierzu sollen jetzige Büros in Patientenzimmer umgenutzt und kleinere räumliche Anpassungen vorgenommen werden.
Neubau Spilhöfler
Die Fassade und die Umgebung beim Neubau Spilhöfler in Uitikon sind fertig gestellt.
Neubau Bürogebäude Suva Fluhmatt Luzern
Wettbewerb, Neubau eines Bürogebäudes auf dem städtebaulich sensiblen Areal oberhalb der Altstadt von Luzern
Sammlungen Toni-Areal, Zürich
Museum für Gestaltung, Schaudepot: Die vier Sammlungen vom Museum für Gestaltung – Plakatsammlung, Designsammlung, Kunstgewerbesammlung und Grafiksammlung – im Toni-Areal.
Umbau Wohnhaus, Zürich
Baustellenfotos zum Projekt Umbau und Sanierung eines Wohnhauses mit 6 Wohnungen
Neubau einer zweigeschossigen Tiefgarage mit rund 240 Parkplätzen und Sanierung der bestehende Tiefgarage des Seminarhotels (SHS). Die neue Tiefgarage liegt teils unter Terrain zwischen bestehenden Gebäuden und ragt auf der kurzen Seite zum SPZ hingewandt, eingeschossig aus dem Boden. Die neue Einstellhalle wird durch die bestehende Tiefgarage des Seminarhotels erschlossen und unterirdisch mit den bestehenden Gebäuden aus dem Areal verbunden.
Brush-Up Bürogebäude, Glattbrugg
Aufwertung des Gebäudes durch ein Fassaden-Brush-Up, Umbau der Eingangs- und Treppenhaussituation im Erdgeschoss, Ersatz der alten Liftanlage und Brush-Up des Treppenhauses und der Erschliessung des Gebäudes
SPS, Seeheim Perlavita, Berlingen
Umbau der Korridorzonen aufgrund von Auflagen der Feuerpolizei
Neubauprojekt für ein Pflegeheim mit ca. 50 Pflegeplätzen, Gesamtgeschossfläche ca. 3'500m2, Gebäudevolumen ca. 10'500m3
Umbau Wohn- und Geschäftshaus, Zürich
Umbau und Sanierung eines Wohn- und Geschäftshauses mit 18 Wohnungen und Dienstleistungsfläche im Erdgeschoss
USZ, Ersatz von 2 MR-Geräten
Ersatz von 2 MR-Geräten, Umbau und technische Anpassungen der Räumlichkeiten
Umbau und Ausbau vom Dachgeschoss mit ca. 25 Pflegezimmern.
Neubau einer 55m langen, 3m breiten Passerellenverbindung zwischen dem Seminarhotel Sempachersee (SHS) und dem Guido Zäch Institut (GZI), neuer Anschlussbau SHS mit Lift vom UG bis zur Passerelle
Umbau von 63 Pflegezimmern inkl. neuer Infrastruktur
RUAG, Neubau Bürohaus, Zürich-Seebach
Neubau HQ Space, ein 4-geschossiger Atriumbau mit reiner Büronutzung
Brushup des öffentlichen Bereiches mit 19 Ladenlokalen
NZZ Equity Yearbook 2014/15
"Das «Razzia» ist zu neuem Leben erwacht" und "Arbenzstrasse 6 zeigt die Liebe zum Detail"
Gesamterweiterung des Spitals Wetzikon innerhalb des in einem Gestaltungsplan definierten Gebäudevolumens
Berufsschule Mode und Gestaltung, Zürich
Planerwahl im selektiven Verfahren, Vorschlag zur Verbesserung der Aussenhülle bzgl. Wärmeschutz, mit Rücksicht auf die denkmalgeschützte Bausubstanz, Konzept zur energetischen Optimierung des gesamten Gebäudes
Erneuerung Spitäler Schaffhausen
Machbarkeits- und Volumenstudie zur Erweiterung der bestehenden Klinik und / oder Ersatzneubau
Umbauen + Renovieren 4/2014
Farbe Inklusive – Ein Interview mit Petra Hemmi und Serge Fayet
Neubau Spitalgebäude mit Operationssälen, nuklearmedizinischer Diagnostik und 6 Pflegestationen (insgesamt 14'160m2 Nutzfläche)
Praktikumstage 2014
Neubau einer Vorstellung - Ein Praktikum beim Hemmi Fayet Architekturbüro
 
						 
						 
						 
						 
						 
						 
						 
						 
						 
						 
						 
						 
						 
						 
						 
						 
						 
						 
						 
						 
						 
						 
						 
						 
						 
						 
						 
						 
						 
						 
						 
						 
						 
						 
						 
						 
						 
						 
						 
						 
						 
						 
						 
						 
						 
						 
						 
						 
						 
						 
						 
						 
						 
						 
						 
						 
						 
						 
						 
						 
						 
						 
						 
						 
						 
						 
						 
						 
						 
						 
						 
						 
						 
						 
						 
						 
						 
						 
						 
						 
						 
						 
						 
						 
						 
						 
						 
						 
						 
						 
						 
						 
						 
						 
						 
						 
						 
						 
						 
						 
						 
						 
						 
						 
						 
						 
						 
						 
						 
						 
						 
						 
						 
						 
						 
						 
						 
						 
						 
						 
						 
						 
						 
						 
						 
						 
						 
						 
						 
						 
						 
						 
						 
						 
						 
						 
						 
						 
						 
						 
						 
						 
						 
						 
						 
						 
						 
						 
						 
						 
						 
						